——
工程方案設計
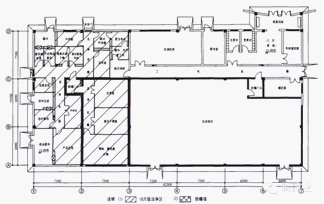
實驗室規劃包括兩個方面:一是實驗室建筑規劃,二是實驗室工藝規劃。涉及專業眾多,更需要同時精通實驗室使用知識和建筑知識作為技術基礎。無論是新建、擴建、或是改建項目,都不單純是選購合理的儀器設備與實驗家具,還要綜合考慮實驗室的總體規劃、合理布局和平面設計,以及強弱電、給排水、供氣、通風、空調、空氣凈化、安全措施、環境保護等基礎設施和基本條件。

完整的設計規劃圖包括:
美泰諾格實驗室設計:
21世紀的實驗室是智能化的實驗室,安全、節能、環保、舒適、人性化、智能化,是目前及將來實驗室建設的標準模式。-種新的實驗室模式正在出現,-種滿足當前實驗室需要且能適應未來發展的實驗室模式,這種模式整在推動21世紀實驗室的發展,也是未來實驗室行業的趨勢所在。
服務流程
相關規范
| 標準 | 規范 |
| GB/T50346-2004 | 《生物安全實驗室建筑技術規范》 |
| WS233-2002 | 《微生物實驗室和生物醫學實驗室通用安全準則》 |
| GB / T50073-2001 | 《潔凈廠房設計規范》 |
| GJ71-1990 | 《潔凈室施工及驗收規范》 |
| JGJ16-2008 | 《民用建筑電氣設計規范》 |
| GB50303-2002 | 《建筑電氣工程施工質量驗收規范》 |
| GB50015-2003 | 《建筑給水排水設計規范》 |
| GB50242-2002 | 《建筑給水排水及采暖工程施工質量驗收規范》 |
| GB50243-2002 | 《通風與空調工程施工質量驗收規范》 |
| GB50210-2001 | 《建筑裝飾裝修工程質量驗收規范》 |
| GB50243-2002 | 《通風與空調工程施工質量驗收規范》 |
| GB/T19489-2004 | 《實驗室生物安全通用要求》 |
掃一掃,快速咨詢
















